Дом по адресу Новосибирск, Мошковский район, за 5500000 р.

Адрес Новосибирск, Мошковский район, село Дубровино, Школьная улица
Цена 5 500 000 р.
Площадь дома 127,3 м2, участка 8 м2
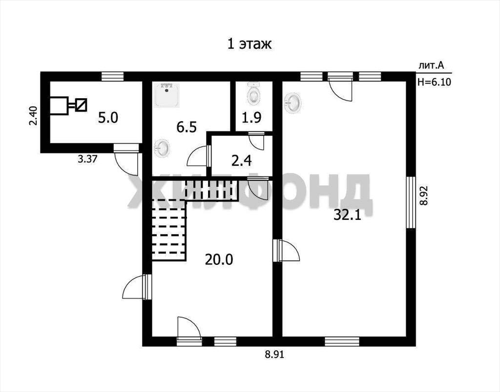
Дом по ул. Школьная. Общей площадью: 127.30 кв.м. К продаже предлагается добротный двухэтажный дом в живописном сибирском месте на реке Обь в Мошковском районе с. Дубровино. Год постройки дома 2013, материал стен-сибит, утеплитель, обшит сайдингом. Hа первом этаже : большая гостиная-кухня ( 32 кв. м) с выходом на просторную веранду и участок. , холл ( 20 кв. м) с выходом в гараж и раздельный с. узел. На втором этаже : три изолированные комнаты , большой холл. Высота потолков 2.8 м , дом светлый , удобной планировки. Все помещения с ремонтом готовы для проживания, частично остается мебель. Коммуникации: вода центральная , отопление - комбинированный котел электро и твердое топливо , водонагреватель на 100 литров. Гараж с автоматическими воротами на одну машину, есть вход из дома. Имеются хоз. постройки. Участок восемь соток, ровный ухоженный . Посадки плодово-ягодные кусты, декоративные деревья, яблони , парник . По периметру высажены кедры. Остановка транспорта ( автобус до Мошково- шесть рейсов в день , Мошково -эл. поезд , автобусы до Новосибирска ) . Продуктовые магазины. Современная новая школа, детский сад , новое помещение врачебной амбулатории. Действующий Дубровинский лесхоз, фермерские хозяйства . базы отдыха. В селе активно строятся добротные дома-усадьбы. До реки 10 мин ходьбы, село окружено лесом. Рыбалка , чистый воздух, ягоды , грибы - все прелести загородной жизни в полном объеме. Документы подготовлены под любой расчет. Возможен обмен на вашу недвижимость. Возможна продажа в рассрочку. При звонке, пожалуйста, сообщите номер варианта - JV008054196550
Объявление № 23025072
Дата подачи:
25 июля 2025 г. 23:25
Дата обновления:
25 июля 2025 г. 23:25
Просмотров 11 Хотите продать быстрее?

Продавец
Ирина Константиновна
Показать номер телефона
Пожаловаться
Комментарии:
Добавить